Piano Terra
Ingresso:
Soggiorno:
Cucina:
Bagno:
Terrazza Sud:
Terrazza Ovest:
Terrazza Nord:
Giardino Privato:
Soggiorno:
Cucina:
Bagno:
Terrazza Sud:
Terrazza Ovest:
Terrazza Nord:
Giardino Privato:
3,30 mq
26,97 mq
8,58 mq
3,78 mq
—-
4,60 mq
6,39 mq
127,00 mq
26,97 mq
8,58 mq
3,78 mq
—-
4,60 mq
6,39 mq
127,00 mq
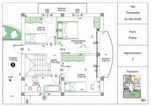
Piano Primo
Camera Doppia:
Camera Singola:
Camera Singola:
Bagno:
Terrazza Sud:
Terrazza Ovest:
Terrazza Nord:
Camera Singola:
Camera Singola:
Bagno:
Terrazza Sud:
Terrazza Ovest:
Terrazza Nord:
14,00 mq
12,40 mq
8,02 mq
5,47 mq
—-
4,60 mq
6,39 mq
12,40 mq
8,02 mq
5,47 mq
—-
4,60 mq
6,39 mq
Puoi stampare tutto il Capitolato in formato stampa (PDF)
cliccando qui >>> STAMPE PDF <<<
cliccando qui >>> STAMPE PDF <<<





