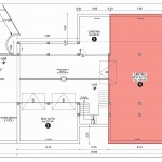
Piano Interrato
Cantina e Garage: 120,00 mq
Pianta Piano Interrato
Clicca per ingrandire
Clicca per ingrandire
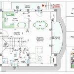
Piano Terra
Ingresso:
Soggiorno:
Cucina:
Bagno:
Terrazza Sud:
Terrazza Ovest:
Terrazza Nord:
Giardino Privato:
Soggiorno:
Cucina:
Bagno:
Terrazza Sud:
Terrazza Ovest:
Terrazza Nord:
Giardino Privato:
3,30 mq
26,97 mq
8,21 mq
3,78 mq
—-
4,60 mq
6,39 mq
179,00 mq
26,97 mq
8,21 mq
3,78 mq
—-
4,60 mq
6,39 mq
179,00 mq
Pianta Piano Terra
Clicca per ingrandire
Clicca per ingrandire
Piano Primo
Camera Doppia:
Camera Singola:
Camera Singola:
Bagno:
Terrazza Sud:
Terrazza Ovest:
Terrazza Nord:
Camera Singola:
Camera Singola:
Bagno:
Terrazza Sud:
Terrazza Ovest:
Terrazza Nord:
14,00 mq
12,40 mq
8,02 mq
5,47 mq
11,83 mq
4,60 mq
6,39 mq
12,40 mq
8,02 mq
5,47 mq
11,83 mq
4,60 mq
6,39 mq
Puoi stampare tutto il Capitolato in formato stampa (PDF)
cliccando qui >>> STAMPE PDF <<<
cliccando qui >>> STAMPE PDF <<<








