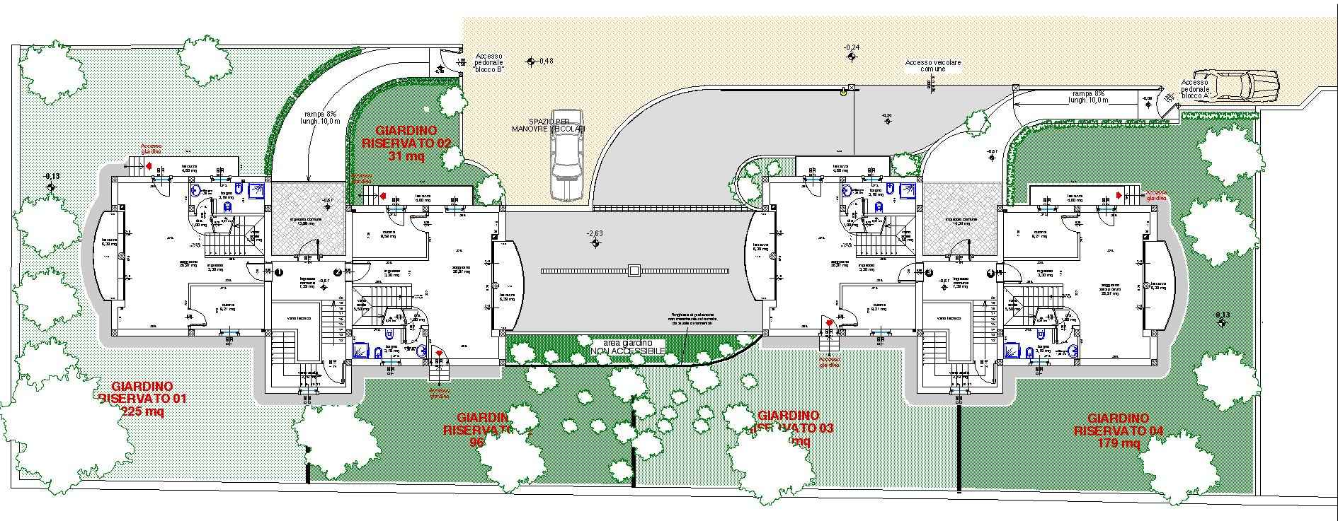
La nuova edificazione è formata da 4 villette.
L’accesso pedonale a queste avviene dalla porta centrale che serve, tramite un disimpegno comune, l’accesso ai singoli alloggi, oppure in alternativa al vano scale comune che a sua volta porta al piano interrato.
Siccome gli accessi alle 4 unità abitative è al piano terra l’ascensore non è stato previsto.
Ogni unità residenziale è dotata di giardino privato ed è stata progettata su due livelli di piano,collegati da scala interna e così definiti:
-Al piano terra si trova la zona giorno formata da: locale cucina, soggiorno-pranzo e bagno giorno, per una superficie di 44,10 mq;

-Al piano primo si trova la zona notte formata da n°3 camere (2 singole e 1 doppia) e il bagno, per una superficie di 46,22 mq

Da quest’ultimo piano si accede tramite una porta interna a una terrazza coperta che si sviluppa per una superficie di circa 12,00 mq, separata dal vicino con un muretto divisorio;
– Al piano interrato si trovano il doppio box auto e la cantina a servizio di ogni unità abitativa.L’accesso all’autorimessa avviene tramite una rampa a senso unico di larghezza variabile da 7,50 m a 3,32 m;

I posti auto di pertinenza (n°3) sono coperti da un solaio ricaricato da terreno e trasformato in giardino pensile, dov’è prevista piantumazione di essenze ornamentali.
Gli interventi effettuati per la realizzazione delle RESIDENZE sono state accorte alle esigenze abitative e alla scelta dei materiali per un adeguato e ottimale risparmio energetico.
cliccando qui >>> STAMPE PDF <<<